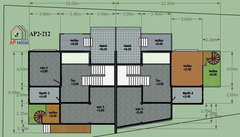
แบบบ้านสองชั้น AP2-0212
ขนาดตัวบ้าน : กว้าง 22.10 เมตร ลึก 9.45 เมตร
พื้นที่ใช้สอย : 208 ตรม.
จำนวนห้อง : 4 ห้องนอน 4 ห้องน้ำ มีโถง มีระเบียงและห้องเก็บของ
งบประมาณก่อสร้าง : -
ราคาแบบบ้าน : 3,900
แบบบ้านสองชั้นสไตล์โมเดิร์น หลังคาเพิงหมาแหงนขนาดใหญ่ ออกแบบโดยบริษัท AP house 2019 รับสร้างบ้าน #ออกแบบโดย : AP house 2019 #รับสร้างบ้าน #รับออกแบบบ้าน #ขายแบบสำเร็จ






